賃貸 併用 住宅 間取り 3 階 (376 無料写真)

2025年 賃貸併用住宅のおすすめの間取りを紹介!決め方やチェックポイントも解説HOME4U 家づくりのとびら。

×

プラン例 3・4・5階建 賃貸併用住宅暮らし提案注文住宅ダイワハウス。

賃貸併用住宅土地活用住宅・ハウスメーカーのトヨタホーム。

杉並区高井戸東3丁目 賃貸併用住宅の物件情報 FAIASA03 三井のリハウス。

おいしいおうちの間取り集 完全分離型3世代住宅御両親と暮した後は賃貸併用住宅としても利用できる暮らし 鹿嶋田の家。

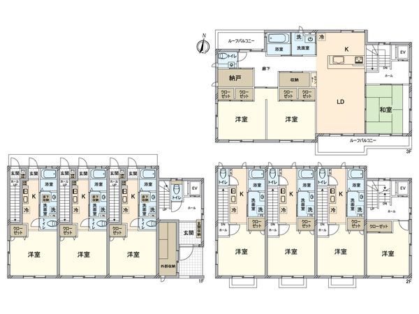
賃貸併用住宅の3階建て間取りガイド成功事例と設計ポイントを解説! - コラム一覧 - お役立ちコラム - パナソニック ホームズ -Panasonic。

家庭・住宅用エレベーター賃貸併用住宅のご提案三菱日立ホームエレベータ。

杉並区南荻窪3丁目 賃貸併用住宅の物件情報 F23ADA07 三井のリハウス。

デザイン&プラン賃貸併用住宅木造注文住宅・戸建の住友林業 ハウスメーカー。

デザイン&プラン賃貸併用住宅木造注文住宅・戸建の住友林業 ハウスメーカー。

2025年 賃貸併用住宅のおすすめの間取りを紹介!決め方やチェックポイントも解説HOME4U 家づくりのとびら。

徹底解説 30坪で賃貸併用住宅!?失敗しない間取り図の例を紹介HOME4UオーナーズNTTデータグループ会社運営。

賃貸併用・二世帯住宅の間取り例skye~スカイエ~ 3階・4階・5階建て 商品注文住宅の大和ハウス ハウスメーカー。

徹底解説 3階建て賃貸併用住宅の間取りは?成功例と注意すべきポイントを紹介HOME4UオーナーズNTTデータグループ会社運営。

心地よい暮らしと家賃収入を両立した3階建の賃貸併用二世帯住宅建築実例を見る東京セキスイハイム。

賃貸併用住宅商品ラインアップセキスイハイムの賃貸経営。

徹底解説 60坪の賃貸併用住宅の間取りは?成功例・注意点についてHOME4UオーナーズNTTデータグループ会社運営。

SUUMO 30坪 賃貸併用住宅 間取り 3階に関する注文住宅・ハウスメーカー・工務店・住宅実例情報。

将来安心な賃貸併用二世帯建築実例セキスイハイム。

賃貸併用住宅の最適な間取りは? 快適性と収益性を兼ね備えた設計についてプロが解説相続会議。

心地よい暮らしと家賃収入を両立した3階建の賃貸併用二世帯住宅建築実例を見る東京セキスイハイム。

SUUMO間取り図有 3階建て 賃貸併用住宅 アンティーク惹き立てる温かみある空間と無駄をつくらない提案力 - RC designの建築実例詳細注文住宅。

1階に賃貸、2・3階は吹き抜けが効果的な都市型3階建併用住宅あたりまえの間取り集500プラン!ミサワホーム。

心地よい暮らしと家賃収入を両立した3階建の賃貸併用二世帯住宅建築実例を見る東京セキスイハイム。

あたりまえ」の間取り検索あたりまえの間取り集500プラン!ミサワホーム。

あたりまえ」の間取り検索あたりまえの間取り集500プラン!ミサワホーム。

新商品「PHIL・COURTフィルコート 」を発売2012年のニュースリリース企業情報公式 三井ホーム 注文住宅、賃貸 ・土地活用、医院・施設建築、リフォーム。

アットホーム 中央3条1丁目 賃貸併用住宅 提供元: 株 グランドサポート 札幌市白石区の売その他 6984660627。

賃貸併用住宅の間取りの決め方は?狭小地での建て方や失敗のポイントを解説「イエウール土地活用」。

RCマンションで実現する賃貸併用住宅高耐久×高収益を両立。

アットホーム 横浜市磯子区杉田3丁目賃貸併用住宅 提供元:住友不動産ステップ 株上大岡営業センター 横浜市磯子区の売その他 1015840987。

おうち時間がより豊かになる3階建て賃貸併用住宅建築実例を見る東京セキスイハイム。

No.31 限られた敷地でも ロフト付き賃貸住宅とインナーガレージのある家狭小住宅 20坪・30坪 の間取りは都市工房 江戸川区・葛飾区・墨田区。

進・賃貸併用住宅『はたらくわが家』の発売についてプレスリリース一覧セキスイハイム。

店舗併用3階建て住宅ハウジングパーククレバリーホームハウジングスクエアハウスメーカー クレバリーホーム - cleverlyhome。

賃貸併用住宅の間取りの決め方は?狭小地での建て方や失敗のポイントを解説「イエウール土地活用」。

東京でも賃貸併用住宅を建てられる!~価格とプランの実例を紹介~はたらくおうち 「賃貸併用住宅」お役立ち情報ブログ。

墨田区押上3丁目賃貸併用住宅の物件情報 F71APA0A 三井のリハウス。

賃貸併用住宅とは?後悔しない間取りのポイントを紹介!SUUMOお役立ち情報。

賃貸併用住宅の新商品「CIEL O'NER シエルオーナー 」販売開始大東建託株式会社のプレスリリース。

業種別 店舗併用住宅の間取り実例!プラン時のポイントや注意点を解説HOME4U 家づくりのとびら。

業種別 店舗併用住宅の間取り実例!プラン時のポイントや注意点を解説HOME4U 家づくりのとびら。

ウェブサイトでの他の写真:

賃貸 併用 住宅 間取り 3 階