電通本社ビル カレッタ汐留。
カレッタ汐留電通本社ビル 展望ロビー の夜景 東京都港区。
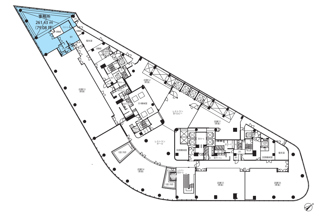
カレッタ汐留」電通本社ビル 港区東新橋 のビル情報 オフィスナビ®。
電通本社ビルRe-urbanization -再都市化。
カレッタ汐留」は渓谷に亀がいるイメージで作られた建築たてものフロンティア。
電通本社ビル カレッタ汐留。
カレッタ汐留」電通本社ビル物件・空室検索東急コミュニティー 賃貸オフィスのパートナ。
カレッタ汐留」電通本社ビル港区 東新橋 の賃貸事務所・賃貸オフィス情報 オフィス移転navi。
電通本社ビル カレッタ汐留。
カレッタ汐留イルミネーションと電通本社ビルからの夜景 - 写真。
電通本社ビル カレッタ汐留- 無料展望室。
電通本社ビル カレッタ汐留港区、東新橋、汐留、新橋 の賃貸オフィス・貸事務所空室情報オフィサイト。
電通本社ビル カレッタ汐留 フロアガイド・アクセス・駐車場東京ビルマップ。
カレッタ汐留のゴーストタウン化には予兆があった? 湾岸エリア30年間の開発史に探る楽待新聞 不動産投資コラム・ニュース。
カレッタ汐留」電通本社ビル物件・空室検索東急コミュニティー 賃貸オフィスのパートナ。
カレッタ汐留」電通本社ビル港区 東新橋 の賃貸事務所・賃貸オフィス情報 オフィス移転navi。
電通本社ビル カレッタ汐留。
カレッタ汐留」電通本社ビル 46階港区賃貸オフィス.事務所仲介手数料無料の青空不動産。
カレッタ汐留 電通本社ビルオフィス情報のケン・コーポレーション。
カレッタ汐留 電通本社ビル 新橋・西新橋・汐留 港区貸事務所・賃貸オフィスは貸事務所ドットコム東京。
カレッタ汐留 電通本社ビル : SHIP PHOTO。
カレッタ汐留」電通本社ビル 46階港区賃貸オフィス.事務所仲介手数料無料の青空不動産。
電通本社ビル - Wikipedia。
カレッタ汐留」電通本社ビル 新橋、東銀座 の賃貸オフィス空室情報。
電通本社ビル カレッタ汐留。
カレッタ汐留の地下2階に「汐留横丁」が誕生!😲 \行ってみたいと思ったら保存してね📲 2023年8月27日 日 、電通本社ビルのある「 カレッタ汐留」 @caretta__shiodome の地下2階に、フードホール「汐留横丁」がオープン。広さは約390平方メートルで、自席で。
カレッタ汐留 電通本社ビル - 物件情報 ライヴェックス。
電通グループ テレワークの定着により「電通本社ビル」を売却 売却額は国内のビル取引として過去最大級の3,000億円規模になる見通し!: 東京・大阪都心上空ヘリコプター遊覧飛行。
電通本社ビルの紹介 地図 アクセス と写真東京都港区東新橋。
カレッタ汐留」電通本社ビル港区 東新橋 の賃貸事務所・賃貸オフィス情報 オフィス移転navi。
電通本社ビル カレッタ汐留 から見た勝どき方面の超高層ビル群 : 超高層マンション・超高層ビル。
電通本社ビル カレッタ汐留 フロアガイド・アクセス・駐車場東京ビルマップ。
電通本社ビル カレッタ汐留港区、東新橋、汐留、新橋 の賃貸オフィス・貸事務所空室情報オフィサイト。
工事実績電通本社ビル。
電通本社ビル カレッタ汐留 フロアガイド・アクセス・駐車場東京ビルマップ。
カレッタ汐留 電通本社ビル 汐留、新橋 の空室情報賃貸事務所ドットコム。
電通本社ビル カレッタ汐留。
電通本社ビル カレッタ汐留。
カレッタ汐留 電通本社ビル 新橋・西新橋・汐留 港区貸事務所・賃貸オフィスは貸事務所ドットコム東京。
カレッタ汐留: FABRICA。
カレッタ汐留 電通本社ビルオフィス情報のケン・コーポレーション。
カレッタ汐留 電通本社ビルオフィス情報のケン・コーポレーション。
夜のカレッタ汐留 電通本社ビル東京考察 211BANCHAN WORLD。
電通本社ビル - Wikipedia。