22坪の狭小地にビルトインガレージ2台。完全二世帯長期優良3階建て住宅建築システム 狭小住宅専門店 の新築施工例 くふうイエタテ。
ビルトインガレージのある三階建ての価格は?事例や間取り、注意点もご紹介インゾーネの家。
ガレージユニットハウス・プレハブ・コンテナハウスの三協フロンテア。
事務所増築 2階建てコンテナ倉庫ATS, Japan。
大型車庫新築工事 : AKKスチールな日々。
B02GARAGE STYLE.COM by Green bell。
ユニットハウス プレハブ 事務所 上下連結 2階建 シャッター ガレージ 店舗 組み立て式 連結可能 仮設住宅 仮設スーパーハウス コンテナハウス :AR物語 - 通販 - Yahoo!ショッピング。
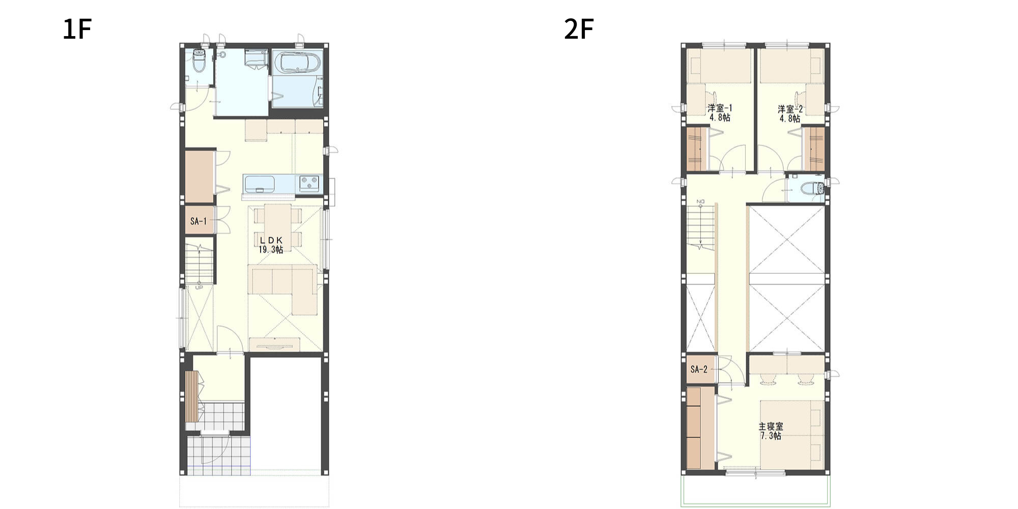
SUUMO ビルトインガレージ 2台 3階建てに関する注文住宅・ハウスメーカー・工務店・住宅実例情報。
SUUMO2階建て 吹抜け ガレージハウス 37坪 間取り図 3台の愛車と共に遊びのつまった趣味空間 - BAUHOUSE-住まい設計工房バウハウス- の建築実例詳細注文住宅。
土地80坪に立つ、高級感のある和モダンなガレージハウス建築実例アドヴァンスアーキテクツ。
おしゃれな2階建てガレージハウスの施工事例!メリット・デメリットも解説 - くらしえる便り。
有限会社 中島建築所・姫Design工房 建築士事務所。
楽天市場 2 階 建て ガレージの通販。
おしゃれな2階建てガレージハウスの施工事例!メリット・デメリットも解説 - くらしえる便り。
ビルトインガレージの費用相場を車の台数・構造別に解説間取り実例や必要な広さについても。
二階建てガレージハウスが人気の理由は?価格相場や間取り例も紹介BLOG上越市・柏崎市・妙高市の新築注文住宅・デザイン住宅ならアットホームラボ。
有限会社 中島建築所・姫Design工房 建築士事務所。
コンテナ型ガレージハウス建築・土地活用や経営ならAZTOアジト。
2階建てガレージ デザイン『G-ATTIC』 イープランイプロス。
ガレージを建てる時に気をつける事。
コンテナハウスの2階建ての施工事例と建築会社を紹介。
茨城で平屋のガレージハウスを建てたい!理想の間取り、価格はどれくらい?不二建設。
2階建て木造ガレージ『G-ATTIC』の施工事例3選。
二階建てのガレージハウスの費用相場は?メリット・デメリットや間取り例も三重県・愛知県・岐阜県の注文住宅ならアサヒグローバルホーム。
12坪 狭小住宅のプロが叶えた憧れのビルトインガレージのある間取り横浜の狭小住宅・二世帯住宅・注文住宅の間取りは中鉢建設。
ガレージユニットハウス・プレハブ・コンテナハウスの三協フロンテア。
2階建ての車庫兼物置株式会社 西尾。
2階建てガレージの増築リフォームの費用は?既設車庫に部屋やプレハブの増設相場もご紹介-リフォらん。
2階建てガレージの増築リフォームの費用は?既設車庫に部屋やプレハブの増設相場もご紹介-リフォらん。
2階建てのガレージハウスを建てる際のポイントは?費用相場や建築実例も紹介 - コラム一覧 - お役立ちコラム - パナソニック ホームズ -Panasonic。
狭小地でもガレージハウスは建てられる!メリット・デメリットと建てる際の注意点を解説 - ビルドアートマガジン。
50件以上のガレージハウスの実例や間取りを紹介!格好良さと実用性を兼ね備えた魅力を大公開注文住宅のハウスネットギャラリ。
ガレージユニットハウス・プレハブ・コンテナハウスの三協フロンテア。
ユニットハウス、プレハブのシャッターガレージ車庫、別荘などにもおすすめ。
プレハブ、倉庫、作業場、工場は東京ハウジングにお任せ下さいクレストスタンダード内装無し・拡大写真。
2階建て木造ガレージ『G-ATTIC』の施工事例3選。
ガレージハウスで「平屋」や「狭小住宅」を建てるメリット・間取りや注意点を解説。得する税金のお話も重量木骨の家。
おしゃれなガレージハウス実例15選外観・内装で取り入れたいアイデアも紹介注文住宅なら建築設計事務所フリーダムアーキテクツ。
ビルトインガレージの費用相場を車の台数・構造別に解説間取り実例や必要な広さについても。
ビルトインガレージの増築リフォームの価格・費用、メリット・デメリットは? シャッターの種類や離れのガレージとの違いも解説 -リフォームタイムズ SUUMO -リフォーム・リノベーションのプロが発信する情報。
コンテナ型ガレージハウス建築・土地活用や経営ならAZTOアジト。
ビルトインガレージのメリット、プラン、サイズ、コスト、工夫など中川龍吾建築設計事務所 東京都練馬区。
ビルトインガレージの費用相場を車の台数・構造別に解説間取り実例や必要な広さについても。
ビルトインガレージ・一階車庫二階住居の特徴と費用とはカーポートの上への増築リフォーム会社紹介サイト「ホームプロ」。
2階建てコンテナハウス 1階倉庫・2階部屋ATS, Japan。
ガレージハウス価格表AZTO。
2階建てのガレージハウスを建てる際のポイントは?費用相場や建築実例も紹介 - コラム一覧 - お役立ちコラム - パナソニック ホームズ -Panasonic。
車2台分のガレージハウスを建てる際の注意点!間取りや費用相場も紹介住まいづくりに役立つ情報サイト「home tag」。
ビルトインガレージのある住みやすさにこだわった長期優良2階建て住宅建築システム 狭小住宅専門店 の新築施工例 くふうイエタテ。
大阪・名古屋 コンテナハウス、ガレージハウスの Good Plannings。
格安ガレージハウスを500万~1000万円以下で建てる!価格や間取りを紹介BLUEBOX住宅ヒント株式会社ブルーボックス。
Amazon.co.jp: ガレージプラン: 2階建て、1台の車庫プラン 588-1-12フィート-3インチx24フィート-オプションのアパート付き: DIY・工具・ガーデン。
SUUMO ビルトインガレージ 2台 費用に関する注文住宅・ハウスメーカー・工務店・住宅実例情報。
ビルトインガレージの間取りはどう作る?25~40坪 2階建て・平屋・3階建てのおすすめ間取りnexthouse高性能な注文住宅を安心の定額プランで。
2階建て木造ガレージ『G-ATTIC』の施工事例3選。
二階建てのガレージハウスの費用相場は?メリット・デメリットや間取り例も三重県・愛知県・岐阜県の注文住宅ならアサヒグローバルホーム。
ガレージハウスの価格をシミュレーション! メリット・注意点も解説注文住宅なら建築設計事務所フリーダムアーキテクツ。
二階建てガレージハウスの間取り実例と費用相場!コストを抑えるコツや広さの目安も。
Amazon.co.jp: ガレージプラン: 2階建て、1台の車庫プラン 588-1-12フィート-3インチx24フィート-オプションのアパート付き: DIY・工具・ガーデン。
G41GARAGE STYLE.COM by Green bell。
二階建てのガレージハウスの費用相場は?メリット・デメリットや間取り例も三重県・愛知県・岐阜県の注文住宅ならアサヒグローバルホーム。
ガレージハウスの価格相場は?間取りや実例とともに紹介 - くらしえる便り。
ガレージ倉庫。
楽天市場 2 階 建て ガレージの通販。
ビルトインガレージがある2階建ての間取り8選音対策や動線のポイントも解説群馬の新築注文住宅はハグデザイン一級建築士事務所へ。