工藤浩平建築設計 事務所による、東京・練馬区の住宅「佐竹邸」。不動産業を営む施主の為に計画。将来的な販売も見据えた在り方も考慮し、異なる機能に引き継ぐ可能性を含めて設計 。様々な制限に起因する“ズレ”を活かした“普通”と“特別”が調和する建築architecturephoto.net。
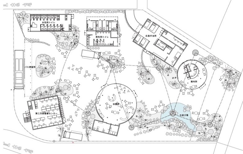
750個の石をネックレスのようにつるす万博休憩所、若手20組の1組である工藤浩平氏日経クロステック xTECH。
街や社会を変えられるような気がする」建築家・工藤浩平が考える地方プロジェクトの魅力と大阪・関西万博での建築デザインについて -casa。
大阪・関西万博2025 休憩所2 under construction工藤浩平koheikudo建築建築以前建築以後地球の物質循環expo2025。
工藤浩平建築設計 事務所による、秋田市の「鳥海邸」。未接道の土地や空き家が目立つ地域での計画。街の特徴を“余白”として捉えて継承も意図し、様々な使い方を促す“半屋外空間”で囲われた中庭を中心とした 建築を考案。寒冷地での“暮らしの範囲”の拡張も試みる。
工藤浩平建築設計事務所 工藤浩平の建築事例東京都の設計事務所会員SuMiKa建築家・工務店との家づくりを無料でサポート。
KJ 2022年4月号 工藤浩平建築設計事務所 - メルカリ。
工藤設計 - SearchX。
不只是住宅,更是生活風景的延伸:秋田楢山別邸,工藤浩平演繹空間流動與時間推移 FAM。
東松山の家 - 空間デザイン事例 - デザイン情報サイト JDN。
第5夜 若手建築家プレゼン大会TOPIC1 「つくること」の探求と学び 工藤浩平さん よなよなzoom編集室。
東京都台東区の建築家、工藤浩平建築設計事務所homify。
生田の園庭」の遊具で、建築家・工藤浩平さんが模索した建築と家具の境Hidakuma。
工藤浩平建築設計事務所ケーススタディ創造系不動産。
バレエ教室のある家新建築オンライン。
建築家_工藤浩平さんに聞く!!“パークミュージアムをつくる楽しさ”とは⁈ 新しい建築の楽しさ2020s展 特別企画3 - YouTube。
工藤浩平建築設計事務所による、埼玉の、多目的スペースをもつ住宅「東松山の家」と論考「郊外で住み継ぐ居場所について考えた」architecturephoto.net。
STK2021。
大阪・関西万博 トイレや休憩所などを紹介_休憩所2 - TECTURE MAG テクチャーマガジン空間デザイン・建築メディア。
Amazon.co.jp: KJ2022年4月号2022年4月号: 工藤浩平建築設計事務所: 本。
フローリングのIOC アイオーシー株式会社「IOCコラム・建築における床の意味と意匠について」の詳細情報を配信するコラムです。
Special Movie: “Satake House” 工藤浩平と佐竹雄太が解き明かす 佐竹邸- TECTURE MAG テクチャーマガジン空間デザイン・建築メディア。
工藤浩平+小黒日香理工藤浩平建築設計事務所による「プラス薬局みさと店」と、実際にこの建築を訪問した6組の建築家たちによる感想。
建築家はこうやって独立する! 工藤浩平建築設計事務所。
750個の石をネックレスのようにつるす万博休憩所、若手20組の1組である工藤浩平氏日経クロステック xTECH。
Kohei Kudo 工藤浩平 on X: "4.6万人の能代市に、現段階で6万回再生のいけちゃん。設計事務所としての活動もそうだけど、地域を知ってもらうという意味では、かなり効いてるね。ニュースタッフすごいな。この学園祭は、官民連携でやっていて、来年もやる予定なので、来年。
第5夜 若手建築家プレゼン大会TOPIC1 「つくること」の探求と学び 工藤浩平さん よなよなzoom編集室。
バレエ教室のある家工藤浩平建築設計事務所 新建築住宅特集。
工藤浩平建築設計 事務所による、埼玉・吉川市の「バレエ教室のある家」。周囲で建替えが進む“変わり続ける”地域。未来の変化を許容する“大らかな”存在を目指し、箱を“寄せ集める”様に計画して“生活の余白”が散在する 建築を構築。細かな屋根の集合で街並のスケールとも調和。
工藤浩平建築設計事務所新しい建築の当事者たちTOTOギャラリー・間。
鳥海邸新建築オンライン。
JIA建築家大会プレイベント2 無事終わりました!関係者皆様ありがとうございました!今回はパーシモンヒルズ廣岡周平さん、工藤浩平建築設計事務所の工藤浩平 さん、小坂森中建築の森中康彰さん、nascaの桔川卓也さんにお越しいただきました!楽しかったー!今後も定期的に。
不只是住宅,更是生活風景的延伸:秋田楢山別邸,工藤浩平演繹空間流動與時間推移 FAM。
多くの人から愛されるものには普遍的な魅力がある」建築家・工藤浩平が大切にしているデザインや建築家を目指したきっかけについて -casa。
工藤浩平建築設計事務所による、埼玉の、多目的スペースをもつ住宅「東松山の家」と論考「郊外で住み継ぐ居場所について考えた」architecturephoto.net。
Vol.12 明るさ、開放感、包み込むような心地よさがつくるおおらかな建築新しい建築のおおらかさを求めてAGC Glass Plaza。
photos©Tomoyuki Kusunose ・ 工藤浩平建築設計事務所による、秋田市の住宅「楢山の別邸」風土と環境に応える“普遍的な開き方”を追求。断熱性能のある“ガラスのダブルスキン”で包まれ、生活と風景が混じり合う連続性のある平面構成の建築を考案立石遼太郎の論考。
不只是住宅,更是生活風景的延伸:秋田楢山別邸,工藤浩平演繹空間流動與時間推移 FAM。
工藤浩平建築設計 事務所による、秋田市の「楢山の家」。浸水被害を受けた住宅の建替。被災対策に加え経済性も求め、独立基礎を併用した“高床”と急勾配の“落雪屋根”を特徴とする 建築を考案。未来を見据えて取捨選択した設計の末に“不思議なアイコニックさ”が現れる。
街や社会を変えられるような気がする」建築家・工藤浩平が考える地方プロジェクトの魅力と大阪・関西万博での建築デザインについて -casa。
工藤浩平建築設計事務所-建築人設計人的店-進口建築室內景觀藝術設計書籍專賣店。
住宅特集 2021年2月号 – 平屋という選択 大地と繋がる暮らしの魅力住宅特集株式会社新建築社。
全国合同卒業設計展 卒、26工藤浩平さんKohei Kudo 建築家株式会社工藤浩平建築設計事務所 代表取締役2005年国立秋田高専卒業。2008年東京電機大学卒業。2011年東京藝術大学大学院修了。2012-17年SANAA 妹島和世+西沢立衛 に勤務後、Instagram。
photo©Kai Nakamura ・ 工藤浩平+小黒日香理工藤浩平建築設計事務所による「プラス薬局みさと店」と、実際にこの建築を訪問した6組の 建築家たちによる感想 ・ Kohei kudo & Associates designed the pharmacy "Plus PharmacyMisato" in Gunma , Japan. ・ more。
CS52 方南町の家ケーススタディ創造系不動産。
街や社会を変えられるような気がする」建築家・工藤浩平が考える地方プロジェクトの魅力と大阪・関西万博での建築デザインについて -casa。
Kohei Kudo 工藤浩平 on X: "力作がつづく。東京電機大学卒業設計 https:t.co LXWoVQ6XfK"X。
photos©Tomoyuki Kusunose ・ 工藤浩平建築設計事務所による、秋田市の住宅「楢山の別邸」風土と環境に応える“普遍的な開き方”を追求。断熱性能のある“ガラスのダブルスキン”で包まれ、生活と風景が混じり合う連続性のある平面構成の建築を考案立石遼太郎の論考。
菊名の家 工藤浩平建築設計事務所 @koheikudo_and_associates量産型規格住宅の改修。南北で約2mの高低差がある敷地に対し、既存建物東側の1 3を減築し、余った土地の分割・売却のうえ、売却費を改修費用に充てた。残った住宅部分にはストラクチャーを再編集し、塔屋部分。
建築家はこうやって独立する! 工藤浩平建築設計事務所。
工藤浩平建築設計 事務所による、秋田市の「鳥海邸」。未接道の土地や空き家が目立つ地域での計画。街の特徴を“余白”として捉えて継承も意図し、様々な使い方を促す“半屋外空間”で囲われた中庭を中心とした 建築を考案。寒冷地での“暮らしの範囲”の拡張も試みる。
住建トレーディング - 楢山の別邸。
工藤浩平建築設計事務所新しい建築の当事者たちTOTOギャラリー・間。
不只是住宅,更是生活風景的延伸:秋田楢山別邸,工藤浩平演繹空間流動與時間推移 FAM。
東京都台東区の建築家、工藤浩平建築設計事務所homify。
工藤浩平建築設計事務所による、埼玉の、多目的スペースをもつ住宅「東松山の家」と論考「郊外で住み継ぐ居場所について考えた」。
娘婿は建築家 孫達が遊びに来たくなる埼玉の家辰巳琢郎の家物語 リモデル☆きらりBS朝日。
工藤浩平+小黒日香理工藤浩平建築設計事務所による「プラス薬局みさと店」と、実際にこの建築を訪問した6組の建築家たちによる感想。
街や社会を変えられるような気がする」建築家・工藤浩平が考える地方プロジェクトの魅力と大阪・関西万博での建築デザインについて -casa。
生田の園庭」の遊具で、建築家・工藤浩平さんが模索した建築と家具の境Hidakuma。
不只是住宅,更是生活風景的延伸:秋田楢山別邸,工藤浩平演繹空間流動與時間推移 FAM。
Kohei Kudo 工藤浩平@kopppepanX。
東松山の家日本空間デザイン賞。
750個の石をネックレスのようにつるす万博休憩所、若手20組の1組である工藤浩平氏 2ページ目日経クロステック xTECH。